Wateringbury, Kent - NEW

An exceptional development of 7 custom build homes in the Kent countryside.

 

Border Oak are delighted to offer 7 exceptional plots on a small development in a quiet lane in a wonderful area of Kent.

The site sits on a former nursery and so benefits from beautiful mature trees around the development.  Each house is a bespoke design - Border Oak have secured detailed planning approval using our highly regarded material palette and renowned attention to detail, so the plots are ready to start. Border Oak will supply services to each plot, complete all the master landscaping and will undertake and project manage at least the external construction phases of all the houses, to ensure the overall project is delivered to our very exacting standards and is coordinated effectively. Individual choices internally are possible.

Each plot has a generous outbuilding and spacious private gardens. 

Near to the pretty towns of East & West Malling, with a full range of services available in nearby Maidstone, the site is very well located and a rare opportunity.  There are lovely walks directly from the site and plenty of nearby facilities. 

There are several outstanding schools nearby as well as a wide range of train services from East Malling - only 1 hour to London Victoria.

For any enquiries or questions, please contact Julie Lawrence - 01568 708 752 julie.lawrence@borderoak.com

Plot 1 - £450,000

House Size
241m2
Full planning permission has been granted for a four bedroomed house and a 2 bay garage.

Plot 2 - £395,000

House Size
196m2 (excluding Garage)
Full planning permission has been granted for a three bedroomed house and a single bay attached garage.

Plot 3 - £475,500

House Size
233m2
Full planning permission has been granted for a five bedroomed house and a double bay garage with annex above.

Plot 4 - £475,500

House Size
266.8m2
Full planning permission has been granted for a four bedroomed house and a double bay garage with annex above.

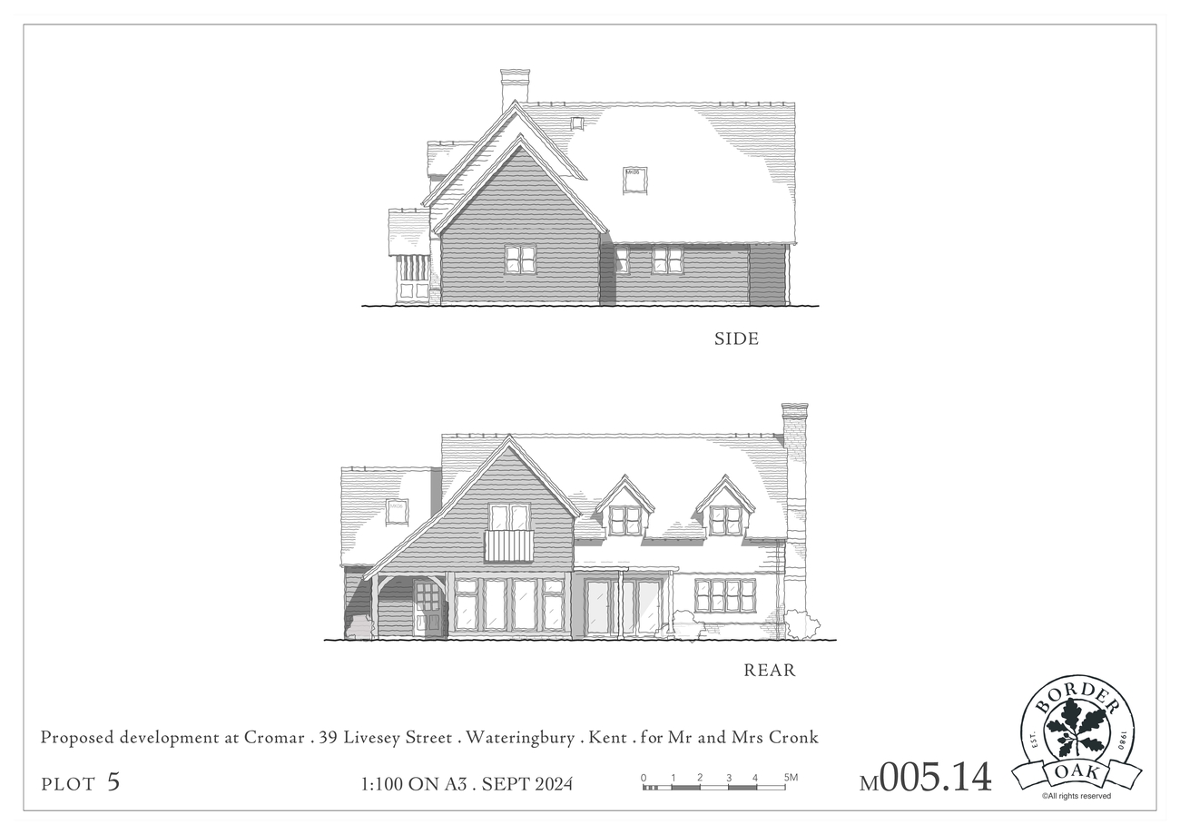
Plot 5 - £365,000

House Size
241m2

Plot 6 - £335,000

House Size
221m2

Plot 7 - £390,000

House Size
258.5m2